
Telefon (): 0351 4716779
Telefax: 0351 4716799
statik-online@arcor.de
http://tragwerk-und-statik.de

Vieles ist im Industriebau ähnlich wie im normalen Hoch-und Tiefbau auch. Manches ist aber auch anders, wie folgende Stichpunkte verdeutlichen:
Hier ist es unser Ehrgeiz, für Sie die bestmögliche Lösung zu finden.

Für mehrere mit Biomasse befeuerte Dampfkraftwerke in Thailand, wurde die ursprünglich dort berechnete und auch konstruierte Stahlkonstruktion überarbeitet und optimiert. Viele Anschlüsse beruhten ursprünglich nur auf Erfahrungswerten. Nach der von uns durchgeführte 2D/3D FEM-Berechnung, konnten Schwachpunkte der Konstruktion aufgezeigt und systematisch verbessert werden. Es entstand so ein in vielen Punkten verbessertes Konstruktionssystem, dass in der Grundstruktur so auch für weitere Projekte anwendbar ist
Tragwerksplanung und Statik
Erweiterung und Aufstockung der Produktionsanlage der Dresdner Silber und Metallveredlung GmbH
Leistungsphasen nach HOAI 3 bis 6
Eine interessante Aufgabe: Tragwerksplanung und Statik für die Erweiterung einer Dresdner Traditionsfirma.
Leistungsumfang Statik
Planung/Berechnung des Stahlbaus und des Massivbaus. Berücksichtigung des laufenden Betriebs der Produktionsanlage.
Kreative Lösung einer komplizierten Situation für die Fundamentierung.
Entwurf: Architekturbüro S. Thiele/Dresden

Tragwerksplanung und Statik
Leistungsphasen nach HOAI 3 bis 6
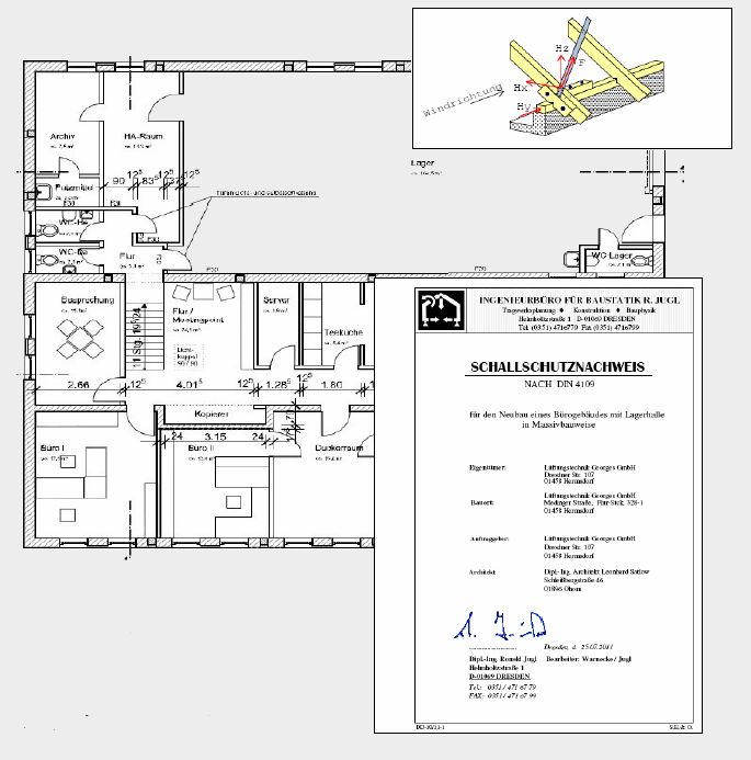
Tragwerksplanung und Statik für den Neubau eines Büro-
und Werkstattgebäudes mit angeschlossener Lagerhalle.
Die Ausführung erfolgte in traditionellem Mauerwerksbau mit einer zimmermannsmäßig abgebundenen Dachkonstruktion.
Leistungsumfang Statik
Planung/Berechnung des Stahlbeton, Holz- und Mauerwerksbaus. Erarbeitung von Detail- und Ausführungsplänen.
Sonstige Nachweise
Nachweis des bautechnischen Schallschutzes, Nachweis gemäß Energieeinsparverordung EnEV 2009
Entwurf: Architekturbüro
Leonhard Satlow
01896 Ohorn
Schleißbergstraße 46
Bauherr
Lüftungstechnik Georges GmbH
Dresdner Str. 107
01458 Hermsdorf
Vor dem deutschen Atomausstieg hatten wir die Ehre in einigen AKW´s kerntechnische Anlagen sicherer zu machen.
Unsere erbrachten Leistungen im Bereich Tragwerksplanung und Statik: Mitarbeit bei der Instandsetzung und statischen Ertüchtigung in den Vattenfall-Kernkraftwerken Krümmel und Brunsbüttel.
Es waren zahllose Nachweise vor allem für Ankerplatten mit Hinterschnittankern und für verschiedenartigste Stahlbühnen und Stahlkonstruktionen zu führen. Neben der eigentlichen statischen Nachweisführung, stellte der unglaubliche Bürokratieaufwand alle Beteiligten vor bisher nicht gekannte Herausforderungen.
STATIC ANALYSIS
WITH DETAILS
REGARDING
CONSTRUCTION
AND EXECUTION
CONCRETE BOTTOM PLATE, BEVERLEY URANIUM MINE
CLIENT: UIT-GmbH
Zum Windkanal 21
01109 Dresden
GERMANY
LOCATION: BEVERLEY
Uranium Mine South Australia
PROJEKT: Beverley Relocotable SatelliteBeverley Uranium Mine, Heathgate PTI Ltd.
In sehr kurzer Zeit wurden von uns die statischen Berechnung, inklusive der Ausführungspläne für die gewaltigen Fundamente der 600 t Presse erstellt.
Die Einbindetiefe beträgt ~6 m, davon sind 2,5 m im
Grundwasser, was für Planung und Ausführung neben dem hohen Gewicht der Presse eine zusätzliche Herausforderung darstellte.
Mit der Einzelkantpresse ist die Firma Frindt nun in der Lage, Werkstücke mit einer max. Länge von 18.400 mm - in einem Stück zu fertigen. Eine Preßkraft von 3000 t (bis 1.000 t/m) ermöglicht fast unbegrenzte Möglichkeiten. Zum Bsp. das Kanten von 25 mm Stahl auf 18,4 m Länge oder sogar 100 mm Stahl auf 3 m Länge. Außerdem können hochfeste Werkstoffe wie Welldox 1100 bearbeitet werden.
Berechnung und Planung von Maschinenfundamenten: Hier ist die Ausbildung eines Blockfundamentes mit Aus- legung für hohe dynamische Beanspruchungen zu sehen. Die Schwingungen der Maschine, waren ohne Beeinträchtigungen und Schäden in die bestehende Produktionshalle zu integrieren.
Planungsleistungen:
Kurzbeschreibung: Gründung auf ~10 cm Magerbeton mit 2lg.PE-Folie als Trennschicht Bettungszahl: 100.000 kN/m³ (Fundament nahezu biegesteif)
Steifezahl gemäß Bodengutachten: Es = 80 MN/m²
Beton: C30/37 XC2, XA1 Überwachungsklasse 2 (DIN 1045-3) unten nass: gewählt Cnom = 4,5 cm
Auftraggeber:
LRT Tharandter Baumaschinen GmbH
Pienner Straße 41-45GmbH
01737 Tharandt
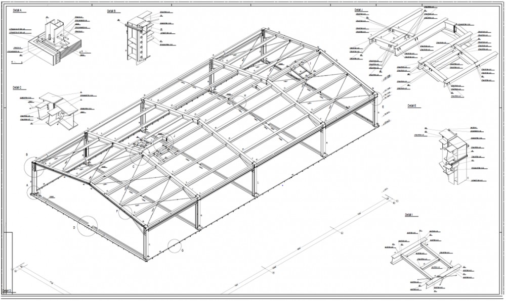
Zwischen verschiedenen Baukörpern aus bestehenden Produktionsgebäuden, musste eine zwar ziemlich kleine, aber mit vielen Sonderlösungen ausgestattete Stahlhalle konstruiert werden. Für spezielle Einbauten waren sehr detaillierte Werkstattzeichnungen erforderlich.
Entwurf und Gestaltung/Genehmigungsplanung
Maschinenfabrik Alfred Linde GmbH
Kaiserin-Augusta-Str. 32-34
21526 Fürstenbrück
Umbau und Entkernung im Landmaschinenwerk Case New Harvesting Systems GmbH, in Vorbereitung zur Übergabe an die Firma Hymer. Für den Einbau der neuen Fertigungslinie mußten viele Montagebühnen, Installationen etc. entfernt werden, unter anderem wurde die komplette Farbstraße demontiert. Ende 2006, startet hier die Produktion preiswerter Wohnmobile, es entstehen ca. 150 Arbeitsplätze.
Kooperation mit: Mull & Partner Dresden (Altlastenuntersuchung/Baugrundgutachten)
© Ingenieurbüro für Baustatik, Helmholtzstraße 1, 01069 Dresden
Quelle: http://www63.demo.simpilio.de/Referenzen_Industriebau
planundbau | Tragwerk und Statik | Ingenieurbüro für Baustatik | Dresden
Telefon Dresden: 0351 4716779 | Fax: 0351 4716799
Funk: 0151 21769426 | E-Mail: statik-online@arcor.de